龍湖好望山
更新時間:2017-02-06
| 設計風格 | 歐式 | 戶型案例 | 三居 | 案例面積 | 300 |
|---|---|---|---|---|---|
| 樓盤名稱 | 龍湖好望山 | 所在城市 | 北京 | 案例造價 | 28萬 |
| 設計師 | |||||

案例說明:
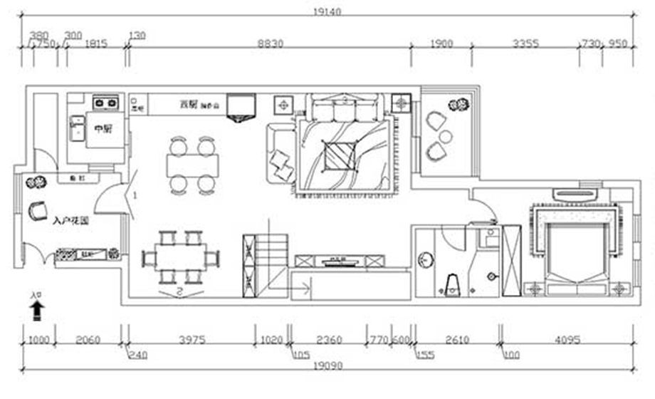
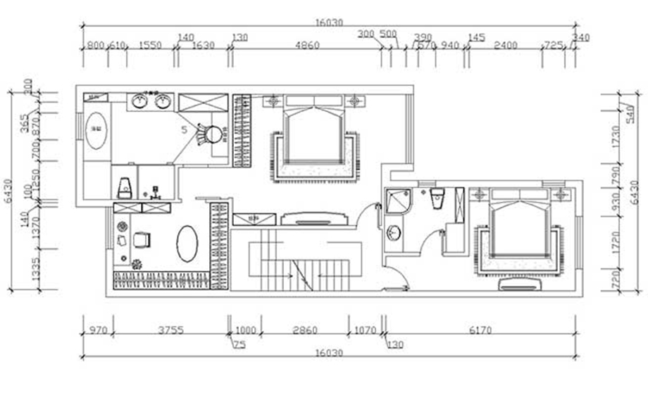
本案設計風格為歐式風格,營造典雅、自然、高貴的氣質、浪漫的情調是本案的主題。生活在繁雜多變的世界里已是煩擾不休,而自然的生活空間卻能讓人身心舒暢,感到寧靜和安逸;借著室內空間的解構和重組,便可以滿足我們對悠然自得的生活的向往和追求,讓我們在紛擾的現代生活中找到平衡,締造出一個令人心馳神往的寫意空間。同風格案例:更多>>
同面積案例:


















京公網安備 11010802032436號