【青島】海德公園
更新時間:2019-04-04
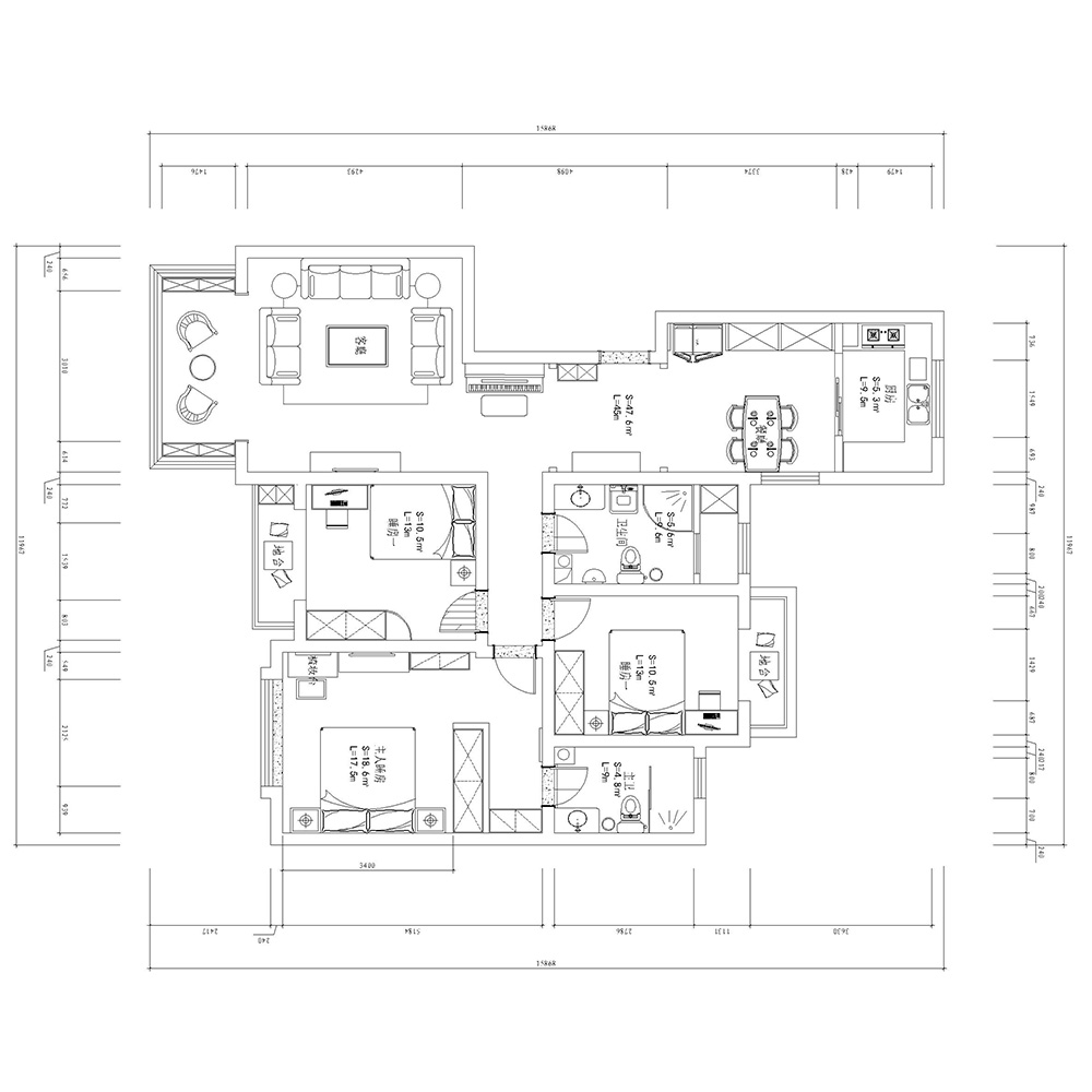
| 設計風格 | 新中式 | 戶型案例 | 平層 | 案例面積 | 178 |
|---|---|---|---|---|---|
| 樓盤名稱 | 海德公園 | 所在城市 | 青島 | 案例造價 | 28萬 |
| 設計師 | 尚志強 | ||||

案例說明:
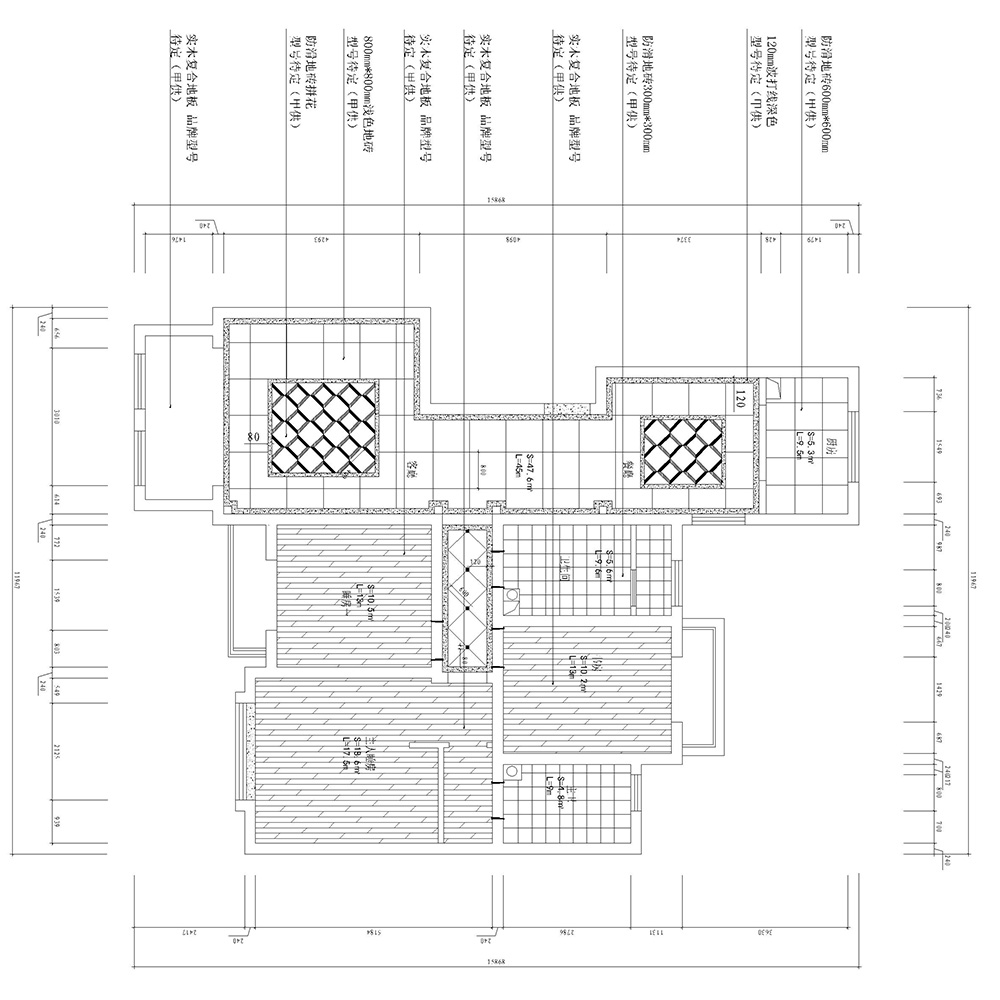
該房子的客廳面積非常大,吊頂造型上,男主人要求造型夸張一些,不要傳統的邊吊,影視墻造型采用傳統的三段式,規整又不失典雅,中心視角運用中國的水墨元素搭配方形壁燈,更能凸顯新中式的氣質。主臥墻面采用素色墻布,增加墻面的肌理感,吊頂線條以中式深咖色實木線條為主,飄窗設計為休閑飄窗,空閑下來可以喝喝茶、看看書,面積雖小,不失生活的品味。同風格案例:更多>>
同面積案例:















京公網安備 11010802032436號