【青島】遠洋公館
更新時間:2019-04-04
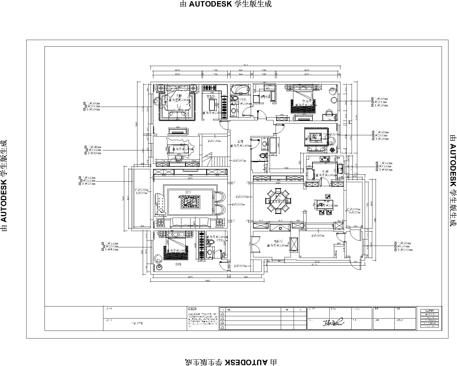
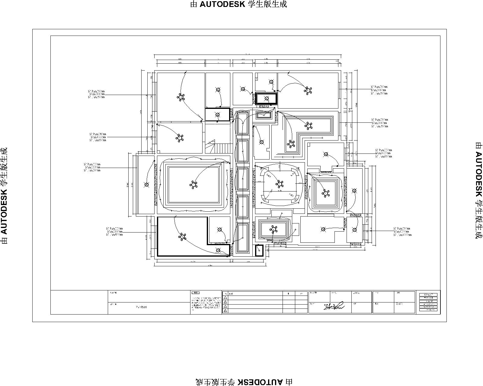
| 設計風格 | 新中式 | 戶型案例 | 三居 | 案例面積 | 360 |
|---|---|---|---|---|---|
| 樓盤名稱 | 遠洋公館 | 所在城市 | 青島 | 案例造價 | 65萬 |
| 設計師 | 孫連凱 | ||||

案例說明:
本案中的360平米的三居室整體采用了新中式風格裝修,新中式風格的設計不拘泥于傳統的中式元素,而是在繼承古典的基礎上融入現代的特色,將兩者有機地統一起來,作品表達出現代人對于中式風格低調沉穩的精神境界的追求。
同風格案例:更多>>
同面積案例:
| 客服專線: | 010-84580331 | 加盟專線: | 010-82272748 | (工作日:9:00-18:00) |
預約加盟
預約裝修
客戶服務
返回頂部
闊達標準工程,一看就不同!
全國累計已有一百余家加盟公司
免費獲得家裝服務
全國各地業主都在申請!
闊達裝飾竭誠為您服務!
| 設計風格 | 新中式 | 戶型案例 | 三居 | 案例面積 | 360 |
|---|---|---|---|---|---|
| 樓盤名稱 | 遠洋公館 | 所在城市 | 青島 | 案例造價 | 65萬 |
| 設計師 | 孫連凱 | ||||

本案中的360平米的三居室整體采用了新中式風格裝修,新中式風格的設計不拘泥于傳統的中式元素,而是在繼承古典的基礎上融入現代的特色,將兩者有機地統一起來,作品表達出現代人對于中式風格低調沉穩的精神境界的追求。